CLOSE
お問合せ・相談予約
line up

新しい住まいづくりのカタチ

暮らし方から選べる、
多彩な住まいのラインナップ

株式会社カルチャーでは、暮らし方や価値観に合わせて選べる多彩な住まいのラインナップをご用意しています。シンプルな住まいをベースに、自分らしさを重ねていく家。自然や趣味、家族との時間を大切にできる家。住まいの形は一つではなく、理想の暮らしから導き出されるものだと考えています。それぞれの個性を持つ住まいの中から、あなたのライフスタイルに合った一棟を見つけてください。

ZERO-CUBE
ZERO-CUBEの外観

CONCEPT

暮らしに合わせて育てていける、
シンプルな住まい

ZERO-CUBEは、無駄をそぎ落とした四角いかたちをベースに、自分たちらしい暮らしを重ねていける住まいです。シンプルだからこそ、家族構成やライフスタイルに合わせた工夫がしやすく、住まう人の発想次第で表情を変えていきます。新築時はもちろん、住み始めてからも手を加えながら、自分たちの暮らしに寄り添う住まいをつくることができます。

ZERO-CUBEの外観

自由にアレンジできる、
スタンダードという選択

ZERO-CUBEは、暮らしのベースとして考え抜かれたスタンダードな住まいです。シンプルな構造だからこそ、空間の使い方やインテリアの選び方で、自分の好みや楽しみを反映できます。趣味の空間をつくったり、過ごし方に合わせて雰囲気を変えたりと、住む人の感性に合わせて広がっていく柔軟さが魅力です。

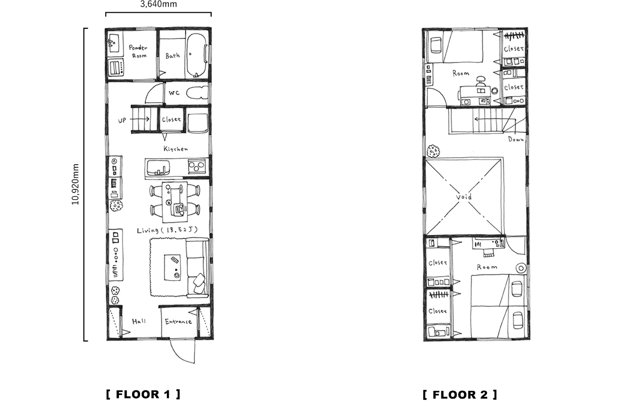
延床面積 / 98.53㎡(29.80坪)
床面積 / 1F:52.99㎡(16.03坪) 2F:45.54㎡(13.77坪)

間取り図

FEATURES

暮らしを自由に描ける、ZERO-CUBE

  • ZERO-CUBEの外観

    無駄を省いた、すっきりとした箱型デザイン

    ZERO-ZERO-CUBEは、装飾を抑えたシンプルな箱型の外観が特長です。形を整えることで、流行に左右されにくく、長く愛せるデザインを実現しています。どんな街並みにもなじみやすく、外観から暮らしのイメージを広げられる住まいです。

  • ZERO-CUBEの屋上

    暮らし方に合わせて選べる、+FUNの拡張性

    暮らしの楽しみを広げるための「+FUN」オプションを組み合わせることで、住まいの使い方に幅が生まれます。趣味や家族構成に合わせて空間を工夫できるため、住む人それぞれのライフスタイルに寄り添った住まいづくりが可能です。

  • 住まいを守る、耐久性に配慮した外装材

    外壁や屋根には、耐久性やメンテナンス性を考慮したガルバリウム鋼板を採用しています。すっきりとした見た目と機能性を両立し、日々の暮らしを支える安心感を備えた外装仕様です。

  • 家族の様子が自然と伝わる、対面キッチン

    リビング全体を見渡せる対面キッチンを採用し、家族とのつながりを感じやすい空間設計としています。料理をしながら会話が生まれ、日常のひとときを心地よく共有できる住まいです。

ZERO-CUBE MINI
ZERO-CUBE MINIの外観

CONCEPT

限られた敷地でも、
心地よく暮らせる住まい

ZERO-CUBE MINIは、狭小地でも無理なく建てられるよう考えられたスマートな住まいです。コンパクトな設計でありながら、シンプルなデザインと暮らしやすさを両立しています。都市部や限られた敷地条件の中でも、自分たちらしい暮らしを実現できる住まいです。

コンパクトだからこそ広がる、自由な家づくり

ZERO-CUBEの楽しさをそのままに、敷地条件に合わせて選べるのがZERO-CUBE MINIです。オプションを組み合わせることで、暮らし方や好みに応じたカスタマイズが可能です。必要なものを大切にしながら、自分たちにちょうどいい住まいを形にできます。

延床面積 /72.03㎡(21.78 坪)
床面積 /1F: 39.74㎡(12.02 坪)2F: 32.29㎡(9.76 坪)

間取り図

FEATURES

限られた敷地でも、暮らしやすさを大切にした設計

  • 敷地条件に対応する、コンパクトなプラン設計

    ZERO-CUBE MINIは、2間・2.5間のコンパクトなプランを用意し、都市部の限られた敷地にも柔軟に対応します。敷地条件を理由に住まいづくりをあきらめることなく、無理のないかたちで新しい暮らしを始められる設計です。

  • +FUNで広がる、自分たちらしい暮らし方

    コンパクトな住まいでも、自分らしさを大切にできるのがZERO-CUBE MINIの魅力です。暮らし方や好みに合わせて+FUNのオプションを組み合わせることで、限られた空間の中でも楽しみのある住まいをつくることができます。

  • 光を取り入れやすい、工夫された室内レイアウト

    狭小地では課題になりやすい採光性にも配慮したレイアウトを採用しています。建物の配置や開口部を工夫することで、明るさを感じられる室内空間を実現し、日常を心地よく過ごせる住まいとしています。

  • すっきりとした形が生む、開放感のある空間

    建物の凹凸を抑えたシンプルな形状により、室内を効率よく使える設計としています。コンパクトなサイズでありながら、数字以上の広がりを感じられる空間づくりが特長です。

ZERO-CUBE KAI
ZERO-CUBE KAIの外観

CONCEPT

光と風を住まいに取り込む、
中庭のある暮らし

ZERO-CUBE KAIは、住まいの中心に中庭を設けることで、光と風をやさしく取り込む住まいです。外からの視線を気にすることなく、空や季節の移ろいを身近に感じられる空間設計としています。キッチンや廊下、浴室からも中庭を望めるため、日常の中で自然とつながる心地よさを味わえます。

ZERO-CUBE KAIのガーデン

暮らしの真ん中に、
静かに開かれたプライベートガーデン

ZERO-CUBE KAIは、建物の中心に設けた庭を囲むように空間を構成した住まいです。完全に守られたプライベートな庭があることで、外に出なくても自然を感じる時間が生まれます。家のどこにいても庭の気配を感じられる設計が、日々の暮らしにゆとりと落ち着きをもたらします。

延床面積 / 110.86㎡(33.53坪)
床面積 / 1F:59.62㎡(18.03坪) 2F:51.24㎡(15.50坪)

間取り図

FEATURES

中庭を中心に広がる、開放感とプライバシーのある住まい

  • 上下階がゆるやかにつながる、吹き抜け空間

    吹き抜けを設けることで、1階と2階が一体となったのびやかな空間を実現しています。視線や空気が上下に抜けることで、家全体に広がりと開放感が生まれ、どこにいても心地よさを感じられる住まいです。

  • 視線が抜ける、オープンで心地よい設計

    間仕切りを最小限に抑えたオープンな設計により、空間同士が緩やかにつながります。閉塞感を感じにくく、家族の気配をほどよく感じながら、快適に過ごせる住環境を整えています。

  • 光庭を中心に広がる、効率的な住空間

    敷地を有効に活かし、光庭を住まいの中心に配置することで、各居室に自然光を届ける設計としています。中庭を囲むように空間を構成することで、明るさと使いやすさを両立した住まいを実現します。

  • 外からの視線を抑えた、安心感のある住まい

    外部に対して閉じた設計とすることで、視線や侵入への配慮を高めています。プライバシーを確保しながら暮らせるため、在宅時はもちろん外出時も安心感のある住まいです。

ZERO-CUBE STEP FLOOR
ZERO-CUBE STEP FLOORの外観

CONCEPT

段差が生み出す、
立体的で広がりのある暮らし

ZERO-CUBE STEP FLOORは、スキップフロアによって空間に奥行きと変化をもたらす住まいです。上下にずらした床が視線と動線をつなぎ、実際の面積以上の広がりを感じられる設計としています。フロアごとに役割を持たせながらも、家全体が一体となる、のびやかな暮らしを実現します。

ZERO-CUBE STEP FLOORの内観

暮らしのシーンが重なり合う、
リズムのある住空間

STEP FLOORは、複数のフロアがゆるやかにつながることで、暮らしに自然なリズムが生まれる住まいです。過ごす場所によって視界や距離感が変わり、日常の何気ない時間が豊かな風景へと変わっていきます。動きのある空間構成が、自由で多彩な暮らし方を支えます。

延床面積 /105.98㎡(32.04坪)
床面積 /1F:52.99㎡(16.02坪)  2F:52.99㎡(16.02坪)

間取り図

FEATURES

段差が生み出す、立体的で自由な暮らし

  • ZERO-CUBE STEP FLOORの内観

    段差がつくる、視線と動きに変化のある空間

    スキップフロアの段差によって、空間にゆとりだけでなく視線や動線の変化が生まれます。上下にずれた床が、暮らしの中に自然な奥行きとリズムをつくり、家全体を立体的に感じられる住まいです。

  • 趣味を思いきり楽しめる、土間スペース

    土間スペースを設けることで、趣味や作業を気兼ねなく楽しめる場所が生まれます。アウトドア用品の手入れや自転車の収納など、暮らしの幅を広げる実用的な空間として活用できます。

  • 光に包まれる、2階リビングの開放感

    ステップを上がった先に配置された2階リビングは、採光性に優れた明るく開放的な空間です。外からの視線を抑えながらも、光をしっかり取り込み、のびのびと過ごせる居心地の良さを実現しています。

  • 空間を見渡せる、ステップアップキッチン

    一段高く設けたキッチンからは、リビング全体を見渡すことができます。料理をしながら家族の様子を感じられるため、自然と会話が生まれ、暮らしの中心として機能するキッチンです。

ZERO-CUBE MALIBU
ZERO-CUBE MALIBUの外観

CONCEPT

西海岸の空気感を、
日常の暮らしに取り入れる住まい

ZERO-CUBE MALIBUは、カリフォルニア・マリブの街並みや空気感をイメージした住まいです。青い空と海に包まれた開放的なライフスタイルを、日々の暮らしの中で感じられるよう設計されています。自然体で過ごす時間を大切にしながら、心にゆとりをもたらす住空間を提案します。

ZERO-CUBE MALIBUの外観

リラックスした時間が似合う、
開放感のある暮らし

ZERO-CUBE MALIBUは、外と内をゆるやかにつなぐことで、のびやかな暮らしを楽しめる住まいです。光や風を取り込みながら、家の中でも外の気配を感じられる空間構成としています。慌ただしい日常から少し離れ、穏やかな時間を過ごせる住まいです。

延床面積 / 98.54㎡(29.80坪)+バルコニー/ 10.92㎡(3.30坪)
床面積 / 1F:52.99㎡(16.03坪)2F:45.54㎡(13.77坪)

間取り図

FEATURES

ビーチスタイルを印象づける、こだわりのディテール。

  • ZERO-CUBE MALIBUのウッドデッキ

    内と外がつながる、開放的なウッドデッキ

    1階・2階の大開口からつながるウッドデッキは、日常の中にゆとりをもたらす空間です。外の空気を感じながら過ごす時間が、暮らしに自然な広がりとくつろぎを与えてくれます。

  • ZERO-CUBE MALIBUのキッチン

    料理の時間が楽しくなる、タイル仕上げのキッチン

    キッチン周りには、空間のアクセントとなるホワイトタイルを採用しています。デザイン性と実用性を兼ね備え、日々の料理や家族との時間を心地よく支えるキッチン空間です。

  • ZERO-CUBE MALIBUの壁面

    空間に表情を与える、ヘリンボーンの壁面

    リビングの壁には、木目をV字に組み合わせたヘリンボーンデザインを取り入れています。素材の質感を活かした仕上げが、住まい全体に温かみと個性を添えます。

  • ZERO-CUBE MALIBUの照明

    リゾート感を引き立てる、こだわりの照明と装飾

    シーリングファンやマリンランプといったディテールを随所に取り入れ、空間にリゾートの雰囲気を演出しています。細部までこだわることで、日常を特別に感じられる住まいに仕上げています。

ZERO-CUBE FREAK'S
ZERO-CUBE FREAK'Sの外観

CONCEPT

カルチャーを楽しむ、
つながりのある住まい

ZERO-CUBE FREAK’Sは、FREAK’S HOUSEとZERO-CUBEが出会うことで生まれたコラボレーション住宅です。人や趣味、日常とのつながりを大切にしながら、気負わず暮らせる空間を目指しました。シンプルな箱型の住まいに、遊び心とカルチャーを重ねた、自由な暮らしを楽しめる住まいです。

ZERO-CUBE FREAK'Sの外観

気取らず、カジュアルに暮らしを楽しむ家

ZERO-CUBE FREAK’Sは、コンパクトな住まいでありながら、開放感のある空間づくりが特長です。FREAK’S HOUSEならではのアイデアを取り入れ、デザインも価格も身近に感じられる住まいに仕上げています。日々の暮らしを自分らしく楽しみたい方に寄り添う、新しいスタイルの住まいです。

延床面積 / 98.53㎡(29.80坪)
床面積 / 1F: 52.99㎡(16.03坪) 2F: 45.54㎡(13.77坪)

間取り図

FEATURES

つながりを生む、カジュアルな住空間

  • ZERO-CUBE FREAK'Sの趣味空間

    暮らし方に合わせて選べる、+CABINオプション

    ライフスタイルに合わせて追加できる+CABINオプションにより、住まいの使い方が広がります。趣味の空間や作業スペースとして取り入れることで、自分たちらしい暮らしを無理なく形にできます。

  • ZERO-CUBE FREAK'Sのウッドデッキ

    内と外をゆるやかにつなぐ、ウッドデッキ

    ウッドデッキを設けることで、室内と屋外が自然につながる空間構成としています。外の空気を感じながら過ごす時間が、日常に心地よい余白と開放感をもたらします。

  • ZERO-CUBE FREAK'Sの壁

    空間に温もりを添える、板張りアクセントウォール

    FREAK’S HOUSEの世界観を反映した板張りのアクセントウォールを採用しています。素材感を活かしたデザインが、住まいに温かみとラフな心地よさをプラスします。

  • 会話が生まれる、ショップのようなキッチン空間

    カウンターを設けた軒のあるキッチンは、ショップのような雰囲気を楽しめる空間です。料理をしながら自然と人が集まり、暮らしの中心としてにぎわいを生み出します。

HYVA AND STYLE
HYVA AND STYLEの外観

CONCEPT

自然と心地よくつながる、
北欧スタイルの暮らし

HYVA AND STYLEは、北欧の暮らし方をヒントに、自然と調和する住まいを目指した住宅です。インドアとアウトドアをゆるやかにつなぎ、日常の中でアクティブさと心地よさを楽しめる空間を設計しています。住まいはもっと自由で、気持ちが弾む場所であっていい。そんな想いを形にした住まいです。

HYVA AND STYLEのイメージ画像

コンパクトに建てて、広く暮らすという発想

HYVA AND STYLEは、建物はコンパクトに、暮らしの空間はワイドに使うことを大切にしています。スキップフロアによって空間を立体的につなぎ、家族の気配を感じながらも、それぞれの時間を大切にできる設計です。限られた面積の中で、想像以上のゆとりを生み出します。

延床面積 /105.98㎡(32.06坪)
床面積 / 1F: 52.99㎡(16.03坪) 2F: 52.99㎡(16.03坪)

間取り図
  • 一般的な2階建て

    フラットな床構造のため、部屋を移動するための廊下や長い階段を設けるスペースが必要。住空間の変化や広がりに欠けます。

  • スキップフロア構造

    各室への移動には短い階段を利用するため、動線やスペースにムダがありません。階段下の空間も有効に使うことができます。

  • 空気も自由に動くから…

    4層のゆるやかに連続した空間の利点は、住居内の空気にも流動性があること。閉塞感がなく熱や冷気がこもらない快適な室内空間を実現します。

    暖かい空気の流れ
    涼しい空気の流れ

  • 離れていても、つながっている

    スキップフロア構造では、家の中に4層のスペースが生まれます。ゆとりをもたらすとともに、ひとつひとつが独立しているのではなく、住まいのどこに居ても家族がつながっているような一体感のある空間です。

FEATURES

心地よさと機能性を両立した、北欧発想の住空間

  • HYVA AND STYLEのリビング

    段差が生み出す、視線と動線の広がり

    スキップフロアの段差によって、空間にゆとりだけでなく視線や動線の変化が生まれます。上下にずらした床が、暮らしの中に自然な奥行きをもたらし、家全体を立体的に使える設計です。

  • HYVA AND STYLEのイメージ図

    趣味を楽しむ余白としての土間スペース

    土間スペースを設けることで、趣味や作業を気兼ねなく楽しめる空間が生まれます。アウトドア用品の手入れや収納など、暮らしの幅を広げる実用性と楽しさを兼ね備えています。

  • HYVA AND STYLEのキッチンダイニング

    暮らしを見渡せる、ステップアップキッチン

    一段高く配置したキッチンは、ダイニングと連動しながらリビング全体を見渡せる設計です。料理をしながら家族の様子を感じられ、日常のコミュニケーションが自然と生まれます。

  • HYVA AND STYLEのリビング

    光に包まれる、明るい2階リビング

    ステップを上がった先にある2階リビングは、採光性に優れた明るい空間です。外からの視線を抑えながらも光を取り込み、落ち着きと開放感を両立した居心地のよさを実現しています。

NORDIC HOUSE
NORDIC HOUSEの外観

CONCEPT

心地よい毎日が続く、
北欧スタイルの住まい

NORDIC HOUSEは、北欧の暮らし方をヒントに、日々を穏やかに過ごせる住まいを目指しています。特別なことがなくても、気分よく一日を始め、心地よく一日を終えられる。そんな日常の積み重ねを大切にした、シンプルで温もりのある住空間です。

シンプルだからこそ、自分らしさが映える家

無駄をそぎ落としたシンプルなデザインだからこそ、暮らし方や好みに合わせた楽しみ方が広がります。光や風を取り込み、会話が自然と生まれる空間構成が、家族の時間をやさしく包み込みます。流行に左右されず、長く愛せる住まいです。

延床面積 /108.48㎡(約32.81坪)
床面積 / 1F: 57.97㎡(約17.53坪)2F: 50.51㎡(約15.28坪)

間取り図

FEATURES

やさしさと温もりを感じる、北欧デザインの住まい

  • 街並みにやさしくなじむ、北欧カラーの外観

    アースカラーを基調とした配色が、三角屋根のフォルムと調和し、どこか懐かしさを感じる外観に仕上げています。主張しすぎないデザインが、周囲の景観にも自然になじみ、長く愛せる住まいです。

  • 陰影を楽しむ、表情豊かな屋根デザイン

    レンガ調の屋根材を採用し、深みのある陰影と立体感を演出しています。時間帯や天候によって表情が変わり、住まいに豊かな表情と温もりをもたらします。

  • 光に包まれる、吹き抜けのリビング空間

    吹き抜けを設けたリビング・ダイニングは、やわらかな光が広がる明るい空間です。上下階がゆるやかにつながり、家族の気配を感じながら心地よく過ごせます。

  • 暮らしをすっきり整える、大容量収納

    衣類や雑貨、電化製品までまとめて収納できるウォークインクローゼットを備えています。収納力を確保することで、住空間をすっきり保ち、快適な暮らしを支えます。

No.00_DoliveOriginal
No.00_DoliveOriginalの外観

CONCEPT

暮らしを思い描くことから始まる、
住まいのかたち

No.00は、「どんな家に住みたいか」ではなく、「どんな暮らしをしたいか」を考えることから始まる住まいです。ウッドデッキで過ごす時間や、好きなものに囲まれた日常。そんな想像を自由に広げながら、自分らしい暮らしを形にしていくための住まいです。

No.00_DoliveOriginalの寝室

シンプルな箱に、暮らしの個性を重ねていく

住まいのかたちは、必ずしも作り込みすぎる必要はありません。No.00は、あえてプレーンなデザインとすることで、住む人の感性やライフスタイルが自然と映える住まいです。もっと自由に、もっとカジュアルに。暮らしを楽しむための余白を大切にしています。

延床面積/ 105.99㎡(32.06坪)
床面積/ 1F:46.37㎡(14.02坪) 2F:55.48㎡(16.78坪)
Sky Balcony:建物内4.14m²(1.25坪)バルコニー 29.81m²(9.01坪)

間取り図

FEATURES

暮らしを自由に描ける、プレーンな住空間

  • No.00_DoliveOriginalのリビング

    景色とつながる、開放的な2階リビング

    2階には、視界が大きく広がるリビング・ダイニングを配置しています。FIX窓から外の景色を取り込み、自然と人が集まる心地よい空間を演出します。白と木を基調としたシンプルなデザインが、暮らしの幅を広げます。

  • No.00_DoliveOriginalのリビング

    使い方を限定しない、フレキシブルな空間設計

    シンプルな構成だからこそ、暮らし方に合わせた自由な使いこなしが可能です。家具やインテリア、過ごし方によって表情が変わり、住む人の個性が自然と映える住まいです。

  • No.00_DoliveOriginalのエントランス

    暮らしを受け止める、広々とした土間エントランス

    エントランスには、どんなライフスタイルにも対応しやすい土間スペースを採用しています。吹き抜けと正面サッシからの光が入り、明るく開放的な第一印象をつくります。

  • No.00_DoliveOriginalのプライベート空間

    プライバシーに配慮した、安心感のある間取り

    寝室などのプライベート空間を1階にまとめることで、生活空間が外から見えにくい設計としています。開放感と落ち着きを両立し、安心して暮らせる住環境を整えています。

WTW HOUSE PROJECT
WTW HOUSE PROJECTの外観

CONCEPT

日常に、
波待ちのような余白をつくる住まい

WTW HOUSEは、サーファーが波を待つひとときのように、心が静かに満たされる時間を暮らしの中に取り入れる住まいです。
慌ただしい日常から少し距離を置き、自然や自分自身と向き合う。そんなゆったりとした時間が流れる空間を提案します。

WTW HOUSE PROJECTのイメージ画像

感覚で楽しむ、ライフスタイルから考える家

WTW HOUSE PROJECTが目指すのは、間取りや性能だけで語られない住まいづくりです。都会と自然、日常と非日常がゆるやかに混ざり合い、暮らす人の感性によって完成していく空間。インテリアや過ごし方を楽しみながら、自分らしい暮らしを育てていく住まいです。

延床面積/ 98.88㎡(29.90坪)
床面積/ 1F:54.65㎥(16.53坪) 2F:44.23㎥(13.37坪)

間取り図

FEATURES

過ごし方で完成する、自由度の高い住まい

  • WTW HOUSE PROJECTの外観

    外とつながる感覚を大切にした、開放的な空間設計

    大きな開口や視線の抜けを意識した設計により、室内にいながらも外の気配を感じられる住まいです。光や風、時間の移ろいを取り込み、日常の中に心地よい開放感をもたらします。

  • 素材の表情を楽しむ、WTWらしいインテリア

    木やファブリックなど、素材の質感を活かしたインテリアが空間に落ち着きを与えます。飾りすぎないデザインが、暮らしの中で自然と馴染み、長く愛せる住空間をつくります。

  • WTW HOUSE PROJECTの内観

    過ごし方で完成する、余白のある間取り

    WTW HOUSEは、使い方を決めすぎない余白のある間取りが特長です。家具の配置や過ごし方によって表情が変わり、暮らす人のライフスタイルに合わせて住まいが育っていきます。

  • WTW HOUSE PROJECTの外観

    日常と非日常が溶け合う、心を整える住まい

    住まいの中に、静かに気持ちを整える時間をつくることを大切にしています。忙しい日常の中でも、ふと立ち止まり、自分らしさを取り戻せる。そんな感覚を支える住空間です。

THE HOUSE GARAGE PROJECT
THE HOUSE GARAGE PROJECTの外観

CONCEPT

好きなことを思いきり楽しむ、
ガレージと暮らす家

THE HOUSE GARAGE PROJECTは、住まいの中心にガレージを据え、好きなことを存分に楽しめる暮らしを提案します。クルマやバイク、アウトドア、DIYなど、自分らしさを表現する空間が日常の一部になる住まいです。家族との時間も、自分の時間も、どちらも大切にできる設計としています。

THE HOUSE GARAGE PROJECTの内観

仲間が集い、暮らしが遊びに変わる住空間

ガレージを起点に、人が集まり、会話が生まれる。THE HOUSE GARAGE PROJECTは、仲間と過ごす時間まで含めて暮らしと考えた住まいです。住むだけでなく、楽しむことを前提にした空間構成が、日常をよりアクティブで充実したものへと変えていきます。

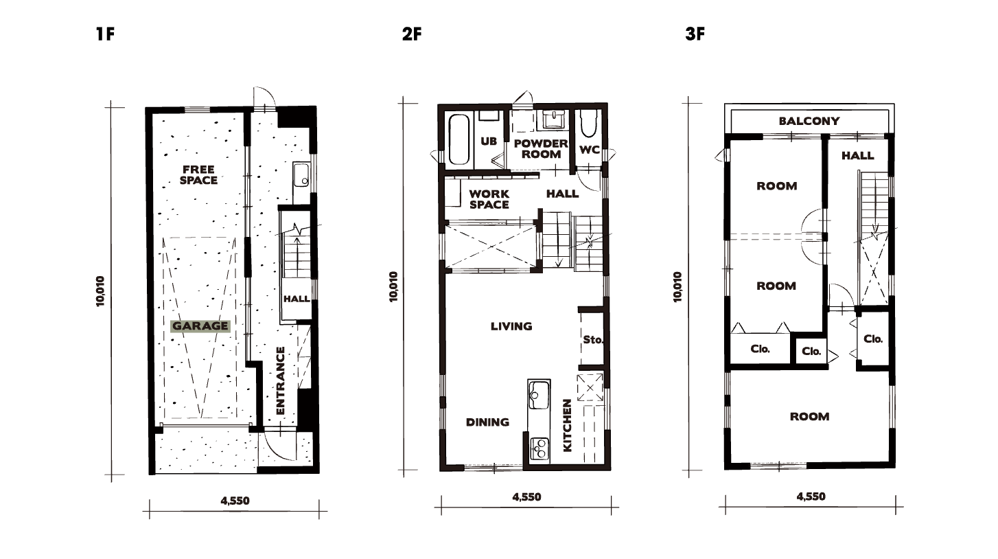
延床面積/ 122.53㎡(37.06坪)
床面積/ 1F:40.31㎡(12.19坪) 2F:41.81㎡(12.64坪) 3F:40.41㎡(12.22坪)

間取り図

FEATURES

好きなことを暮らしの真ん中に置く、ガレージ発想の住まい

  • THE HOUSE GARAGE PROJECTのキッチンダイニング

    家族が自然と集まる、キッチン&ダイニング

    キッチン・ダイニング・リビングをひとつにまとめた空間は、家族が毎日顔を合わせる暮らしの中心です。手作りの料理が並ぶ食卓や、会話が弾むリビングの時間が、何気ない日常を大切な思い出へと変えていきます。

  • THE HOUSE GARAGE PROJECTのワークルーム

    趣味を詰め込める、こだわりのワークルーム

    ワークルームは、自分の好きなものを思いきり楽しめる空間です。2×4の壁を活かした見せる収納で、道具やギアをディスプレイする楽しさも広がります。リビングやガレージとつながる間取りが、開放感を生み出します。

  • THE HOUSE GARAGE PROJECTのロフトスペース

    視線が抜ける、自分だけのロフトスペース

    ロフトは、趣味やくつろぎの時間を楽しめるプライベートな空間です。ギアのコレクションや植物を飾るなど、使い方は自由自在。リビングやガレージを見渡せる位置にあり、こもりながらも開放感を感じられます。

  • 成長に合わせて使える、のびのびした子ども部屋

    キッズルームは、将来の成長を見据えてシンプルな設計としています。模様替えもしやすく、暮らしの変化に柔軟に対応可能です。大きな窓の先にはテラスが広がり、天体観測なども楽しめる空間です。

SEAWARD HOUSE PROJECT
SEAWARD HOUSE PROJECTの外観

CONCEPT

海のほうへ気持ちが向かう、
港のような住まい

SEAWARD HOUSE PROJECTは、ただ海を眺めたくなるような気持ちを大切にした住まいです。波の音や風を感じるような開放感の中で、次の一日へ向かう準備を整える。ここは、暮らしの合間に立ち寄る「港」のような場所として、心と時間をゆるやかに整えてくれます。

SEAWARD HOUSE PROJECTのリビング

海を感じながら、日常をアクティブに楽しむ家

SEAWARD HOUSEは、「海」をキーワードに、機能性と開放感を両立させた住まいです。使いやすい動線や、自由に使えるデッキスペース、見せる収納を取り入れた空間構成により、暮らしの中に自然と楽しさが広がります。日常と非日常が交差する、Feel So Good! な住空間です。

延床面積/ 90.66㎡(27.42坪)
床面積/ 1F:75.35㎡(22.79坪) 2F:15.31㎡ (4.63坪)

間取り図

FEATURES

海へ向かう気持ちを整える、港のような住まい

  • SEAWARD HOUSE PROJECTのアプローチ

    港のように機能する、スムーズな玄関アプローチ

    駐車スペースから玄関までをストレスなく行き来できる動線を確保しています。人や荷物が自然に流れる設計は、まるで船を整えるドックのよう。毎日の「行ってきます」「ただいま」を気持ちよく迎えてくれる住まいです。

  • SEAWARD HOUSE PROJECTのリビング

    モノと人が集まる、港をイメージしたリビング

    リビングは、さまざまなモノや人が行き交う港をイメージした空間です。見せる収納を取り入れることで、道具や思い出も暮らしの一部として楽しめます。家族や訪れた人が自然と集まり、にぎわいが生まれる場所です。

  • SEAWARD HOUSE PROJECTのデッキ

    海辺の開放感を楽しむ、ビーチハウス風デッキ

    リビングからフラットにつながるウッドデッキは、海沿いのビーチハウスを思わせる開放的な空間です。ブランチやホームパーティ、ヨガやDIYなど、暮らす人の発想次第で多彩な使い方が広がります。

  • 自由に使える、贅沢な土間エントランス

    玄関は広々とした土間仕様とし、自転車や遊び道具を並べたり、腰掛けて一息ついたりと自由に使える空間です。毎日家に入る瞬間に、少し気持ちが高まる。そんな「幸せの入口」を目指しました。

CONTACT

現場見学会開催中!
住まいづくりのこと、カルチャーに相談してみませんか?

0120-972-431

受付時間 9:00〜18:00 / 定休日 日曜日・祝日